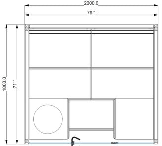
BASIC BENCH




Our standard sizes
1600 x 1600 mm (63’’ x 63’’)
1600 x 1800 mm (63’’ x 71’’)
1800 x 1800 mm (71’’ x 71’’)
1800 x 2000 mm (71’’ x 79’’)
2000 x 2000 mm (79’’ x 79’’)




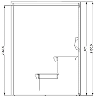
L -DIVAN BENCH








Our standard sizes
1800 x 1800 mm (71’’ x 71’’)
1800 x 2000 mm (71’’ x 79’’)
2000 x 2000 mm (79’’ x 79’’)
EXCLUSIVE BENCH






Our standard size
1800 x 2000 mm (71’’ x 79’’)
